Ningbo Richge Technology Co., Ltd.
Ningbo Richge Technology Co., Ltd.
Produse
ZW7-40.5KV de înaltă tensiune 3 comutatoare 35kV H.V. Întrerupător de vid în aer liber
  • ZW7-40.5KV de înaltă tensiune 3 comutatoare 35kV H.V. Întrerupător de vid în aer liberZW7-40.5KV de înaltă tensiune 3 comutatoare 35kV H.V. Întrerupător de vid în aer liber

ZW7-40.5KV de înaltă tensiune 3 comutatoare 35kV H.V. Întrerupător de vid în aer liber

Model:ZW7-40.5
ZW7-40.5 întrerupătorul de vid de înaltă tensiune de înaltă tensiune adoptă un stâlp design proiectat în mod unic și un mecanism de operare extrem de fiabil. Dispozitivul este utilizat în principal în rețelele de alimentare a liniei aeriene de tensiune medie pentru împărțirea și combinarea curentului de încărcare, curentului de suprasarcină și curentului de scurtcircuit.   ZW7-40.5 Breakerul de circuit de vid în aer liber este în fază acțitoare de înaltă tensiune AC, în fază de înaltă tensiune, este adecvat pentru controlul și protecția sistemelor de transmisie de energie și distribuție de 20-40.5kv și de distribuție, poate fi utilizat și în cazul în care secțiunea de control al break-urilor, care poate realiza un produs de confecționare a unui produs de confecționare, cu un produs de recul, care poate fi utilizat cu ajutorul unui produs de control, cu un produs de control, care poate fi utilizat cu ajutorul controlului de control al piesei de control, în cazul în care Băncile de reculare a convenționale, care pot fi utilizate cu ajutorul unității de combate și redobândirea controlului sistemului de alimentare. Un transformator de curent poate fi adăugat pentru măsurare și protecție. Întrerupătorul de inel este echipat cu un arc sau un actuator electromagnetic, cu performanță mecanică fiabilă și funcționare frecventă; nu există risc de incendiu și explozie

ZW7-40.5KV de înaltă tensiune 3 comutatoare 35kV H.V. Întrerupător de vid în aer liber

ZW7-40.5 întrerupătorul de circuit de vid în aer liber este un echipament electric de înaltă tensiune în exterior AC 50Hz în trifazare; Este potrivit pentru controlul și protecția sistemelor de transmisie și distribuție a puterii de 20-40.5kV; Poate fi, de asemenea, utilizat în ocaziile întrerupătoarelor de secțiune și a băncilor condensatoare comutate; Acest produs poate fi utilizat cu controlerul pieselor, dispozitivul de recuperare poate realiza secțiuni inteligente și reclamarea controlului sistemului de alimentare. Un transformator curent poate fi adăugat pentru măsurare și protecție. Întrerupătorul de inel este echipat cu un arc sau un actuator electromagnetic, cu performanță mecanică fiabilă și funcționare frecventă; Nu există niciun risc de incendiu și explozie.


Principalele caracteristici ale întrerupătorului de circuit sunt performanțele excelente de rupere, arcul de vid, capacitatea de rupere ridicată, durata de viață mecanică de până la 10000 de ori, structura simplă, fără întreținere și ciclul de întreținere lung; Performanță bună a izolației și o puternică capacitate anti -poluare; Transformatoarele actuale pot fi instalate în funcție de cerințele clienților, cu o precizie de măsurare de până la 0,2 la nivel, permițând interacțiunea trifazată. Standard: IEC 62271-100


Detalii despre produs

● ZW7-40.5 Breakerul de circuite de vid în aer liber este un echipament electric de înaltă tensiune în exterior AC 50 Hz; Este potrivit pentru controlul și protecția sistemelor de transmisie și distribuție a puterii de 20-40.5kV; Poate fi, de asemenea, utilizat în ocaziile întrerupătoarelor de secțiune și a băncilor condensatoare comutate; Acest produs poate fi utilizat cu controlerul pieselor, dispozitivul de recuperare poate realiza secțiuni inteligente și reclamarea controlului sistemului de alimentare. Un transformator curent poate fi adăugat pentru măsurare și protecție. Întrerupătorul de inel este echipat cu un arc sau un actuator electromagnetic, cu performanță mecanică fiabilă și funcționare frecventă; Nu există niciun risc de incendiu și explozie.

● Principalele caracteristici ale întrerupătorului de circuit sunt performanțele excelente de rupere, arcul de vid, capacitatea de rupere ridicată, durata de viață mecanică de până la 10000 de ori, structura simplă, întreținerea fără întreținere și ciclul de întreținere lung; Performanță bună a izolației și o puternică capacitate anti -poluare; Transformatoarele actuale pot fi instalate în funcție de cerințele clienților, cu o precizie de măsurare de până la 0,2 la nivel, permițând interacțiunea trifazată.

● Standard: IEC 62271-100.


Structura întrerupătorului

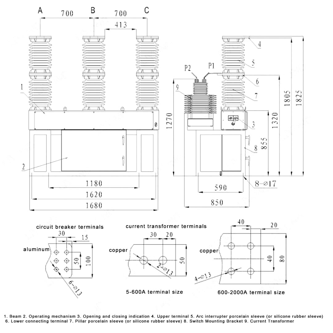
ZW7-40.5 întrerupătorul de vid de înaltă tensiune de înaltă tensiune este compus în principal din pol integrat, transformator de curent, mecanism de funcționare și cutie. Acest tip de întrerupător este de design miniaturizat, iar coaja este confecționată din o cutie de oțel de înaltă calitate. Transformatoarele actuale pot fi selectate în funcție de nevoile utilizatorului. ZW7-40.5 întrerupător de vid de înaltă tensiune de înaltă tensiune și combinație de control inteligentă potrivită. Operația de deschidere și închidere a comutatorului poate fi realizată la nivel local și poate fi, de asemenea, operată de la distanță prin interfața de comunicare. Alte informații ale întrerupătorului de circuit pot fi, de asemenea, transmise centrului de control, iar canalul de comunicare poate alege cablu, fibră optică, GPRS/CDMA, GSM, etc.


Caracteristici

1. Fiabilitate extrem de mare

2. complet fără întreținere de-a lungul vieții

3. are o durată de viață mecanică și electrică ridicată

4. Întreaga mașină are dimensiuni mici, ușoară în greutate, ușor de instalat


Informații de bază.





Parametrul tehnic





Desen dimensional:




Condiții de mediu


1. Temperatura aerului lambient: -30ºC ~+60ºC;

2. Altitudine: nu mai mult de 2000 de metri;

3. Presiunea vântului: nu mai mult de 700Pa (corespunzătoare vitezei vântului 34m/s)

4. Vibrația sau mișcarea la sol din afara echipamentelor de comutare și de control este neglijabilă;

5. Nivel de contaminare: IV;

6. Stocare temperatură -40ºC ~+85ºC.

7. Intensitatea cutremurului: nu depășiți 8 grade;




FAQ

Q1: Sunteți producător sau comerciant?

A1: Suntem un producător profesionist de frunte.

Q2: Cât timp este ciclul dvs. de livrare?

A2: Depinde de cerințele și cantitatea produsului. În general, sunt necesare 5 până la 10 zile lucrătoare pentru livrare

Q3: Care este serviciul dvs. post-vânzare?

A3: Putem răspunde la întrebările utilizatorilor să -și rezolve problemele 24 de ore pe zi și să oferim prompt asistență tehnică cuprinzătoare pentru toate produsele noastre.

Q4: Cum rezolvați problemele de calitate?

A4: Vă rugăm să furnizați fotografii detaliate ale problemelor de calitate. Departamentele noastre de inspecție tehnică și de calitate le vor analiza. Vom oferi o soluție satisfăcătoare în termen de 2 zile.

Q5: Acceptați servicii personalizate?

A5: Oferim servicii OEM/ODM și vă putem imprima logo -ul pe produse. Echipa noastră profesională tehnică și de ofertă poate oferi proiecte satisfăcătoare în funcție de desenele și parametrii dvs.





Fabrică


Certificat




Hot Tags: ZW7-40.5KV de înaltă tensiune 3 comutatoare 35kV H.V. Întrerupător de vid în aer liber, China, producător, furnizor, fabrică, preț scăzut, calitate, ultima vânzare, avansat
Trimite o anchetă
Informatii de contact
Pentru întrebări despre aparatura de joasă tensiune, izolatori de înaltă tensiune, întrerupător de împământare de înaltă tensiune sau lista de prețuri, vă rugăm să ne lăsați e-mailul și vă vom contacta în 24 de ore.
X
Folosim cookie-uri pentru a vă oferi o experiență de navigare mai bună, pentru a analiza traficul site-ului și pentru a personaliza conținutul. Prin utilizarea acestui site, sunteți de acord cu utilizarea cookie-urilor. Politica de confidențialitate
Respinge Accepta